Aktuelle Projekte
Aktuelle Bauvorhaben in Bearbeitung oder in der Bauphase
2019 _ 2020 _ 2021 _ 2022
Magnolienhof Impflingen
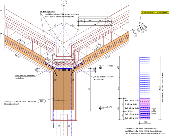
Tragwerksplanung
Holzbau in Brettsperrholzbauweise, Plattengründung, Treppenhäuser in Stahlbeton, Halbfertigteile;
Keller im Grundwasser als Weisse Wanne
Planungsstand: Geprüft und Freigegeben
Bauherr: mainuvest GmbH, Markus und Anja Hey,
www.mainuvest.de
Architektur: Werkgemeinschaft Landau


















